Die Entwicklung des Pioneer Park Hanau geht mit großen Schritten voran: In wenigen Wochen werden die Arbeiten auf dem rund 50 Hektar großen Gelände beginnen.




Für die Stadt Hanau, in der nach dem Abzug der amerikanischen Streitkräfte im Jahr 2008 mehr als 350 Hektar ehemals militärisch genutzter Flächen frei geworden sind, ist der Pioneer Park Hanau das größte Wohnbauprojekt der Nachkriegsgeschichte. Zur Entwicklung des Pioneer Park Hanau hat sie über die stadteigene BAUprojekt Hanau GmbH gemeinsam mit der DSK | BIG Gruppe die LEG Hessen-Hanau GmbH gegründet. „Die Zusammenarbeit verläuft hervorragend. Dafür spricht auch das hohe Umsetzungstempo“, sagte Kaminsky. Nur eineinhalb Jahre nach Gründung der gemeinsamen Gesellschaft stehe der Beginn der bauvorbereitenden Maßnahmen unmittelbar bevor. Zudem starte bereits im April der Vertrieb der ersten Wohnungen im Triangle Housing. Und noch vor der Sommerpause sei der Offenlagebeschluss für den Bebauungsplan vorgesehen. „Dieses hohe Tempo zeigt, dass wir den richtigen Partner für das Projekt gefunden haben“, so Kaminsky.
Dr. Marc Weinstock, geschäftsführender Gesellschafter der DSK I BIG Gruppe und gemeinsam mit Martin Bieberle auch Geschäftsführer der LEG Hessen-Hanau GmbH, lobte die Zusammenarbeit ebenfalls: „Sie verläuft vertrauensvoll und absolut zielorientiert. Die Stadt Hanau hat sich für uns als hochprofessioneller und zuverlässiger Partner erwiesen.“ Die neue Form der Kooperation von Kommune und privatem Investor stelle ein Novum bei solch einem großen Projekt da. „Und wir profitieren davon ungemein, denn dadurch sind wir in der Lage, Erfahrungswerte und wertvolles Know-how aus beiden Bereichen optimal zu nutzen und positiv in die Entwicklung einfließen zu lassen“, so Weinstock.
Der Pioneer Park Hanau solle aber auch in seiner Struktur Pionierarbeit leisten: „Wir planen das Quartier der Zukunft“, sagte Weinstock. Dabei spielten die Themen Vielfalt, Fortschritt und Nachhaltigkeit die zentralen Rollen. Die Bewohnerschaft solle sich aus Menschen unterschiedlichen Alters, unterschiedlicher Herkunft und unterschiedlichen Einkommensklassen zusammensetzen – dementsprechend würden vielfältige Wohnformen in allen Preisklassen zur Miete und zum Kauf angeboten, so der LEG-Geschäftsführer. Er verspricht zudem „fortschrittliche Konzepte in vielen Bereichen des Pioneer Parks“ – etwa bei der Energie- und Wärmversorgung oder bei der Mobilität. „Wir haben uns vorgenommen, ein nahezu CO2-neutrales Quartier zu entwickeln. Außerdem werden wir Mobilitäts-Angebote, zum Beispiel mit Elektro-Car-Sharing-Modellen, schaffen, die es den Menschen erleichtern, sich vom eigenen Auto zu verabschieden“, so Weinstock. „Wichtig ist uns dabei: Wir wollen innovative Angebote für die Menschen schaffen, sie aber nicht erziehen oder bevormunden.“
Wie diese fortschrittlichen Konzepte und Angebote aussehen werden, verdeutlichte Steffen Maiwald, Geschäftsführer der Stadtwerke Hanau. Er bezeichnete den Pioneer Park als „Leuchtturmprojekt“ für die zukünftige Positionierung seines Unternehmens. Die Stadtwerke wollen eine lokale und klimaneutrale Energieversorgung des gesamten Quartiers umsetzen. „Die Stromerzeugung erfolgt dabei über ein zentrales Blockheizkraftwerk vor Ort, ergänzende Photovoltaik-Anlagen und Batteriespeicher in den Gebäuden“, berichtete Maiwald. Die Wärmeerzeugung soll vollständig im Pioneer Park erfolgen – geplant ist eine innovative Kombination aus Blockheizkraftwerk, Wärmepumpen, Solarkollektoren und Eisspeichern. Zur Förderung eines energiesparenden Verhaltens der Bewohner soll der Energieverbrauch jeder Wohnung in Echtzeit via Handy-App abrufbar sein. Darüber hinaus wollen die Stadtwerke gemeinsam mit ihren Partnern auf dem Areal ein zukunftssicheres Glasfasernetz verlegen. „Alle Wohnungen werden damit Highspeed-Internet haben“, kündigte Maiwald an.
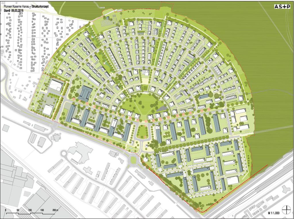
Insgesamt werden im Pioneer Park Hanau rund 1600 Wohneinheiten entstehen – in Einfamilien- oder Reihenhäusern, in Stadtvillen oder den kernsanierten Bestandsgebäuden des Triangle Housing. Das Planungsbüro Albert Speer + Partner informierte die Mitglieder des Struktur- und Umweltausschusses am Mittwochabend über den Stand der Planungen und zeigte dabei erstmals öffentlich, wie der Pioneer Park Hanau aussehen wird. „Dieses Quartier wird sich von der Vielzahl weitgehend gesichtsloser und austauschbarer Neubauquartiere wohltuend abheben“, betonte Dr. Michael Denkel, Mitglied der AS+P-Geschäftsleitung. „Durch die Nähe zu den Kinzigauen, durch großzügige öffentliche Grünflächen, durch die Bewahrung des historischen Geistes und die vielfältigen Gebäudestrukturen wird ein außergewöhnliches Wohngebiet mit besonderen Qualitäten entstehen, das einzigartig im gesamten Rhein-Main-Gebiet ist.“
Der Strukturplan von AS+P sieht vor, dass rund um die großzügige „Grüne Mitte“ eine Vielzahl unterschiedlicher Gebäudetypen entsteht. Ein großer Teil soll neugebaut werden, wenngleich auch mehrere Gebäude erhalten werden. So entstehen beispielsweise in den Bestandsgebäuden des ehemaligen Triangle-Housing rund 300 Eigentumswohnungen, die ab Mitte April über die Sparkasse Hanau an Eigennutzer verkauft und nach den Worten Weinstocks „deutlich unter Marktwert“ angeboten werden. Erhalten werden sollen auch die zehn markanten Gebäude entlang der Aschaffenburger Straße („10 Brüder“) – in den fünf östlichen sollen moderne Wohnungen entstehen, die fünf westlichen sollen für Dienstleistung genutzt werden. Auch das ehemalige Heizwerk sowie die unter Denkmalschutz stehende Kirche und die Kantine werden nicht abgerissen. Für die beiden letzteren sowie für genossenschaftliche Wohnformen will die LEG Hessen-Hanau im Sommer sogenannte Konzeptausschreibungen starten.
Weinstock und Bieberle betonten, dass das Interesse von Bauträgern an dem Projekt außergewöhnlich groß sei. „Wir haben zahlreiche Verhandlungen geführt, die ersten Grundstücksverkäufe stehen unmittelbar bevor“, so die beiden Geschäftsführer. Ein Teil der Flächen wird dabei aber auch aus eigener Hand bebaut werden. Und auch die Stadt Hanau wird als Bauträger in Erscheinung treten: Im östlichen Teil des Areals ist zum Beispiel der Bau einer Grundschule sowie einer Kindertagesstätte vorgesehen.
Im Juni werden voraussichtlich die ersten Arbeiten auf dem Gelände beginnen – von bauvorbereitenden Maßnahmen und Erschließungsarbeiten über den Abbruch von Gebäuden bis hin zu den ersten Sanierungsarbeiten im Triangle Housing. In den kommenden Wochen wird zudem am Bebauungsplan-Entwurf weitergearbeitet, für den das Strukturkonzept von AS+P die Grundlage bildet. Verschiedenste Fachgutachter befassen sich aktuell mit Themen wie Lärm- und Geruchsbelastung, Denkmalschutz oder Altlasten. „Die Entwicklung von Konversionsflächen ist kompliziert, aber wir arbeiten die verschiedenen Themen professionell ab“, erläuterte Bieberle, der bei der Stadt Hanau auch den Fachbereich „Planen, Bauen und Umwelt“ leitet. Er rechnet mit dem Offenlagebeschluss für den Bebauungsplan im Juni, mit dem Satzungsbeschluss für Ende diesen Jahres.
Foto:Das aktuelle Strukturkonzept für den Pioneer Park Hanau des Planungsbüros Albert Speer + Partner. Quelle: Albert Speer + Partner
Foto: Das Areal der ehemaligen Pioneer-Kaserne im Hanauer Stadtteil Wolfgang ist rund 50 Hektar groß. Quelle: Stadt Hanau (Archivfoto aus September 2017)
Foto: Rund um die großzügige Grüne Mitte werden im Pioneer Park Hanau eine Vielzahl unterschiedlicher Gebäudetypen entstehen. Quelle: Albert Speer + Partner (Archivfoto des Modells aus Juli 2017)
Foto: Markante historische Gebäude wie das ehemalige Heizkraftwerk werden erhalten. Quelle: Stadt Hanau (Archivfoto aus Juli 2017)
Ihnen ist etwas Interessantes aufgefallen im Main-Kinzig-Kreis? Schreiben Sie uns an info@vorsprung-online.de
















